| Re: Windsensor Kategorie: Sonstige Hardware (von Josef - 23.06.2011 18:11) | ||
| Als Antwort auf Windsensor von Joerg - 23.06.2011 8:03 | ||
| ||
|
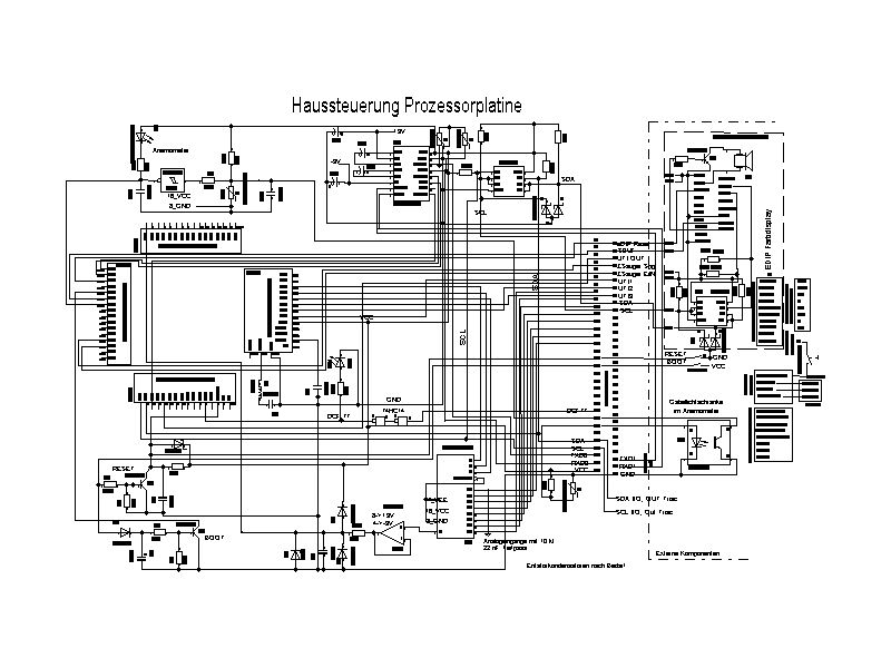
> > Hallo, > > ich habe einen Windsensor mit eingebautem Reedrelais. > Den schlie�e ich beim Mega128 an den Zählereingang Timer1 (PD6). > Mit dem Beispiel FRQ_Messung messe ich dann die Frequenz, > die sich dann in eine Windgeschwindigkeit umrechnen lässt. Die Maximal Frequenz in ungefähr 100Hz. > > Nun will ich aber den Windsensor auf meinem Dach montieren. > Die Leitungslänge beträgt dann ca.20m. Wie könnte eine geeignete Eingangsbeschaltung aussehen? > > Bringt es eigentlich was, wenn man den Sensor z.B. mit 12V betreibt und am Eingang des Ports > über einen Spannungswandler auf 5V reduziert? > > Grü�e Joerg > Hallo Jörg, ich habe eine Gabellichtschranke betreffend mechanischem Verschlei� genommen, geht aber mit Reekontakt auch. 12 V wären sicherlich besser. Hier mein Schaltplan: Grü�e Josef HausProzessor.jpg: ![]() | ||
Antwort schreiben Antworten: | ||
Zur Übersicht - INFO - Neueste 50 Beiträge - Neuer Beitrag - Suchen - Zum C-Control-I-Forum - Zum C-Control-II-Forum


